BÜLBÜL EVLERİ
Ortak kullanım alanlarında Kapalı Otopark ve Asansörlü, Kapıcı Dairesi bulunmaktadır. 1+1 Brüt Daireler 40 m2, 42 m2, 42.5 m2, 45 m2 seçenekleri ile, 2+1 Brüt Daireler 43 m2, 44.5 m2, 45 m2, 45.5 m2, 46.5 m2, 47 m2, 55.5 m2, 60 m2 seçenekleri ile, 1+1 Dubleks Brüt 55 m2, 56.5 m2, 57 m2, 58 m2, 77 m2 seçenekleri ile, 2+1 Dubleks Brüt Daireler 71 m2, 73.5 m2, 82 m2, 85 m2 seçenekleri ile, 4+1 Dubleks Bürt 119.5 m2 ve 1 Adet Kapıcı Dairesi 39.5 m2 dir. Görükle Bülbül Evleri Yılmazlar Kuyumculuk ve Aysat Kuyumculuk ortak iştirakidir.
- 10 Adet 1+1 Daireler
- 13 Adet 2+1 Daireler
- 5 Adet 1+1 Dubleks Daireler
- 4 Adet 2+1 Dubleks Daireler
- 1 Adet 4+1 Dubleks Daire
- 1 Adet Kapıcı Dairesi
Adres:
Görükle, Bursa
E-mail: info@yilmazlarinsaat16.com
Telefon 1: 0533 292 07 67
Telefon 2: 0533 330 46 56
Telefon 3: 0533 524 90 15
Zemin Kat Planı
1+1 Daireler Brüt: 39.5 m2, 42 m2, 42.5 m2, 2+1 Daireler Brüt 45.5 m2, 47 m2 55.5 m2
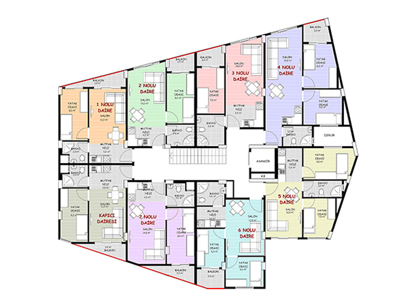
Ara Kat Planı
1+1 Daireler Brüt: 40 m2, 42 m2, 45 m2, 2+1 Daireler Brüt 43, 44.5, 45, 46.5 ve 60 m2
3 Kat Planı
1+1 Dubleks Daireler Brüt: 55 m2, 56.5m2, 57m2, 58m2, 77 m2
Çatı Katı Kat Planı
2+1 Dubleks Daireler Brüt: 71, 73.5, 84 ve 85 m2, 4+1 Dubleks Brüt: 119.5 m2
Bülbül Evleri
Dıştan Görünüm
Bülbül Evleri
Dıştan Görünüm
Bülbül Evleri
Dıştan Görünüm
Bülbül Evleri
Dıştan Görünüm
Bülbül Evleri
Oda Görüntüsü
Bülbül Evleri
Tuvalet Görüntüsü
Bülbül Evleri
Solan Görüntüsü
Bülbül Evleri
Katlar & Merdivenler
Bülbül Evleri
Banyo Görüntüsü
Bülbül Evleri
Daire Kapı Görüntüsü
Ortak kullanım alanlarında Kapalı Otopark ve Asansörlü, Kapıcı Dairesi bulunmaktadır. 1+1 Brüt Daireler 40 m2, 42 m2, 42.5 m2, 45 m2 seçenekleri ile, 2+1 Brüt Daireler 43 m2, 44.5 m2, 45 m2, 45.5 m2, 46.5 m2, 47 m2, 55.5 m2, 60 m2 seçenekleri ile, 1+1 Dubleks Brüt 55 m2, 56.5 m2, 57 m2, 58 m2, 77 m2 seçenekleri ile, 2+1 Dubleks Brüt Daireler 71 m2, 73.5 m2, 82 m2, 85 m2 seçenekleri ile, 4+1 Dubleks Bürt 119.5 m2 ve 1 Adet Kapıcı Dairesi 39.5 m2 dir. Görükle Bülbül Evleri Yılmazlar Kuyumculuk ve Aysat Kuyumculuk ortak iştirakidir.
- 10 Adet 1+1 Daireler
- 13 Adet 2+1 Daireler
- 5 Adet 1+1 Dubleks Daireler
- 4 Adet 2+1 Dubleks Daireler
- 1 Adet 4+1 Dubleks Daire
- 1 Adet Kapıcı Dairesi
Görükle, Bursa
E-mail: info@yilmazlarinsaat16.com
Telefon 2: 0533 330 46 56
Telefon 3: 0533 524 90 15
Zemin Kat Planı
1+1 Daireler Brüt: 39.5 m2, 42 m2, 42.5 m2, 2+1 Daireler Brüt 45.5 m2, 47 m2 55.5 m2
Ara Kat Planı
1+1 Daireler Brüt: 40 m2, 42 m2, 45 m2, 2+1 Daireler Brüt 43, 44.5, 45, 46.5 ve 60 m2
3 Kat Planı
1+1 Dubleks Daireler Brüt: 55 m2, 56.5m2, 57m2, 58m2, 77 m2
Çatı Katı Kat Planı
2+1 Dubleks Daireler Brüt: 71, 73.5, 84 ve 85 m2, 4+1 Dubleks Brüt: 119.5 m2
Bülbül Evleri
Dıştan Görünüm
Bülbül Evleri
Dıştan Görünüm
Bülbül Evleri
Dıştan Görünüm
Bülbül Evleri
Dıştan Görünüm
Bülbül Evleri
Oda Görüntüsü
Bülbül Evleri
Tuvalet Görüntüsü
Bülbül Evleri
Solan Görüntüsü
Bülbül Evleri
Katlar & Merdivenler
Bülbül Evleri
Banyo Görüntüsü
Bülbül Evleri
Daire Kapı Görüntüsü

